ぺるけ師匠の”初めてのアンプの製作”に使える標準シャーシのご紹介です。
詳細図面を公開いたしますので、シャーシを自作なさる方も御参考として下さい。

特徴
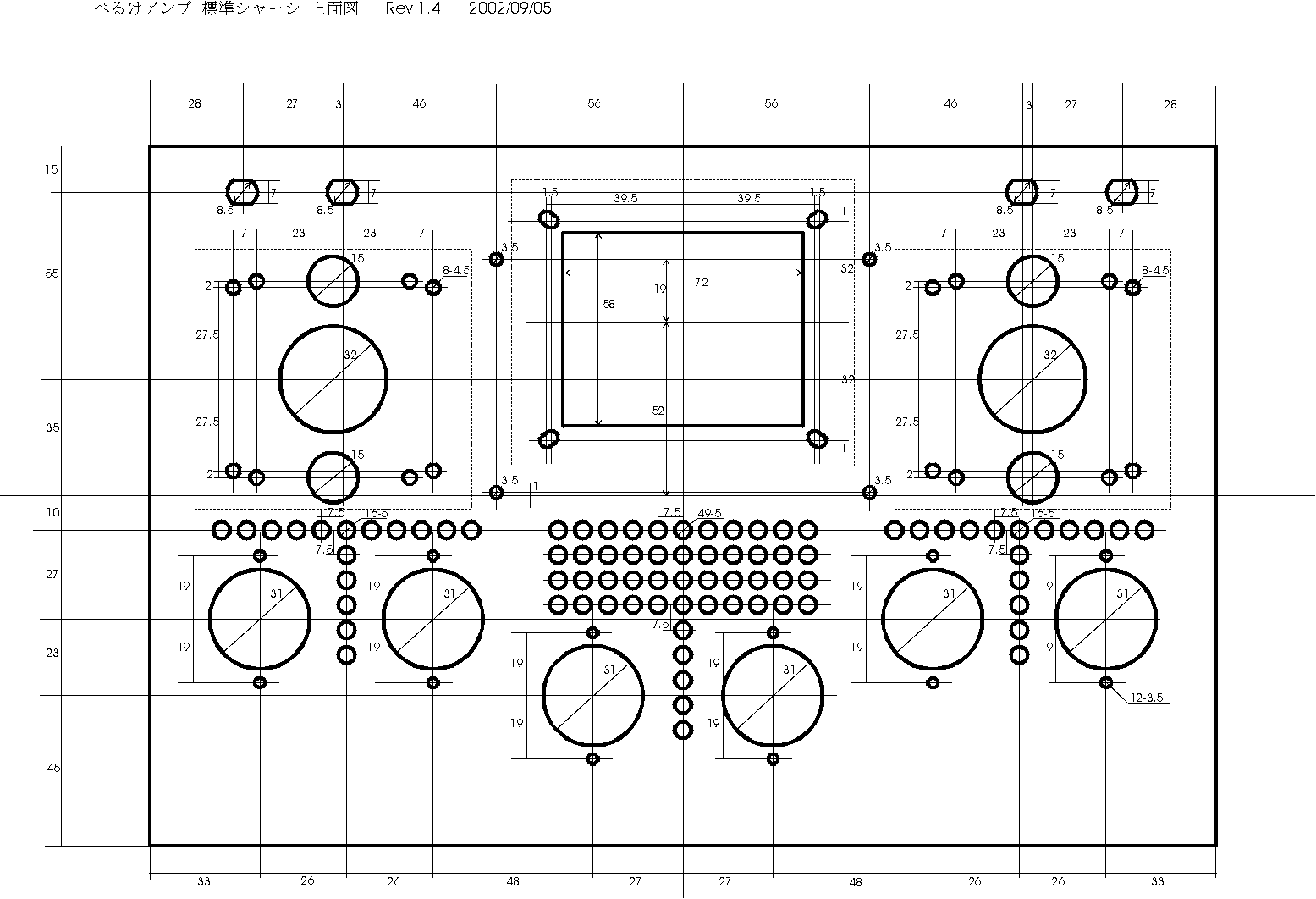
シャーシ外形

外装部品を付けた状態の前面

外装部品を付けた状態の後面
シャーシ仕様
| 構成 | シャーシ本体、底板 |
| サイズ | シャーシ本体:幅320mm、奥210mm、高60mm 底板:幅316mm、奥206mm |
| 材質 | 1.6t鋼板、シャーシ本体は4面溶接仕上げ。 |
| 塗装色 | DIC(大日本インキ)カラーコード 549 FGメジューム89.4、FG85墨8.0、FG59藍2.1、FG45透明黄0.5 艶消し グレー系の色です。 |
| 取り付け可能出力トランス | タンゴ ・・・ FE-25、FX-40、XE-20S、FE-20、旧FW-20、旧CRD、旧XE-45 ノグチ ・・・ PMF-25P、PMF-10WS ソフトン・・・RX-40-5、RW-20 |
| 取り付け可能電源トランス | タンゴ・・・ PH-185、旧LH-150、旧PH-120 ノグチ ・・・ PMC-190M、PMC-170M、PMC-150M ソフトン・・・PWT280-300 |
| 真空管取り付け穴 | GT管用USソケット6個分 |
| 入出力端子取り付け穴 | 入力端子:RCAジャック2個 スピーカ端子:ジョンソン端子2組(4個) 電源端子:IEC3ピン・インレット |
| その他、取り付け穴 | ヒューズホルダ、電源スイッチ、入力ボリューム、足 |
外装部品
本シャーシに取り付け可能な外装部品を解説いたします。外装部品は付属しておりませんので各人ご購入下さい。
| 部品名 | 必要個数 | 解説 | メーカー | 型番 | 販売店 | 単価 | 写真 |
| 入力端子 | 2 (紅白各1個) |
RCAジャック 金メッキ削り出し テフロン絶縁 取り付け穴寸10mmφ |
不明 | 不明 | 秋月 | 150円 | ![]() |
| スピーカ端子 | 4 (赤黒各2個) |
ジョンソンターミナル 金メッキ品 数社で製造しています。 |
各社 | 不明 | 千石 | 230円 | ![]() |
| 入力ボリューム | 2連型1個 | アルプスミニディテント、 コスモスRV24型、 ソフトン小型アッテネータ 若干穴が大きいですが、 バイオレットG-245型が 取り付けられます。 抵抗値とカーブは製作記 を参照下さい。 |
アルプス コスモス ソフトン バイオレット |
ミニディテント RV24型 RH2702 G-245型 |
若松 ? ソフトン ? |
1800円 ? 2800円 ? |
![]() |
| 入力ツマミ | 1個 | 6mm軸用ツマミ 多種ありますので自由に お選び下さい |
各社 (一例 サトーパーツ) |
K-2901 | 千石 | 150円 | ![]() |
| 電源スイッチ | 1個 | 19mmX13mm穴にて取付 け可能な電源スイッチ。 シーソー型 ネオン管自照型 LED自照型 レバー型 等多種あります。 |
各社(一例、 マルシンEST) |
橙色 ネオン管 自照型 MSR8-N#2 |
千石 | 200円 | ![]() |
| 電源端子 | 1個 | IEC規格3ピン インレット | NICOON | NC-174 | 千石 | 150円 | ![]() |
| 電源コード | 1本 | IEC規格3ピン プラグ付き | 不明 | 不明 | 秋月 | 280円 | ![]() |
| ヒューズボックス | 1個 | 10A規格ヒューズボックス | EDK | FH-001AF | 千石 | 200円 | ![]() |
| 管ヒューズ | 1個 | 太さ6mm長さ30mm ガラス管ヒューズ 容量は製作記を参照 下さい |
各社 | 不明 | 千石 | ? | ![]() |
| USソケット | 6個 | GT管用ソケット | QQQ オムロン その他 |
不明 | 真空管 販売店 |
100円 〜150円 |
![]() |
| 足 | 4個 | 3mmネジで取り付け可能 なもの |
各社(一例 西川電子部品) |
ゴム足 K-20 |
西川 | 20円 | ![]() |
| ラグ板類 | 一式 | ラグ板、T端子等が適時 必要です。製作記を参照 下さい。 |
|||||
| その他、ネジ類 | 一式 | 3mmネジ、ナット、 4mmネジ、ナット、等が 適時必要です。 |
西川 |
図面
組立て上の注意
ご意見、ご質問は
他の方の参考にもなる件は ぺるけさんの掲示板にお書き込み下さい。
私信扱いをご希望の件は下記、私(善本)宛にメール下さい。